1-412-672-0450
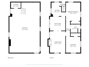
827 Norwich Ave., Pittsburgh (2 bdrm SFH)
Bedroom - Bathroom Apartment
Got questions? We're here to help!
(412) 672-0450

Overview

Lovely 2 bedroom Bungalow style single family home in Brookline/Dormont. Full basement with laundry hook ups.

Property Information

Contact Property Directly